42 East 31st Street Hamilton, Ontario L8V 3N7
$649,900
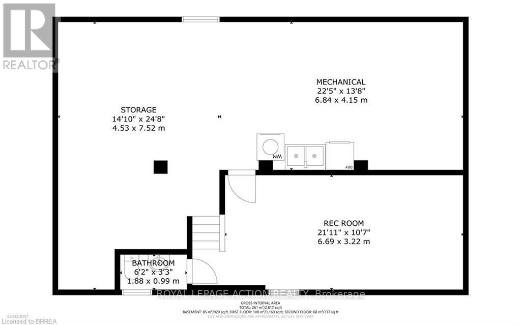
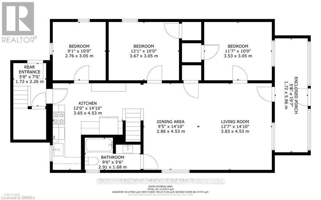
Freshly updated & move-in ready! This 4-bedroom, 3 bath home has two kitchens, recreation room, 2 laundry areas and a separate entrance, offering a versatile layout to accommodate your large family, extended family, or the possibility to generate rental income. The double-wide driveway fits 2 vehicles and leads to a front deck and large enclosed porch. Inside, the foyer opens into a bright open concept living/dining space featuring new " hardwood flooring and high ceilings throughout the main level. The main floor includes 3 bedrooms, all with hardwood, plus a new 4-piece bathroom with porcelain flooring, a soaker tub, and tile surround. The new eat-in kitchen features quartz countertops, ample cabinetry, hardwood flooring, and a quartz breakfast bar. It also provides access to a common area with a separate side entrance, leading to the backyard and upper portion of the home. The separate entrance off the kitchen has stairs that lead to a landing and a cozy upper deck with glass railing overlooking the yard. A few steps up is another landing that works perfectly as a mudroom, before entering the upper unit. The upper level has been updated and includes a newer kitchen with luxury vinyl flooring and granite countertops, plus an updated 4-piece bathroom with luxury vinyl flooring and a glass-entry shower with ceramic tile surround. The original hardwood has been refinished and runs through the spacious bedroom and combined living/dining area, which features vaulted ceilings and recessed lighting. The newly constructed lower level offers a recreation room with recessed lighting and broadloom, a 2-piece bath, and a large laundry/mechanical/storage area. Ideally located near Juravinski Hospital, this property is perfect for investors, extended families, or anyone looking for a flexible layout with income potential to help pay for expenses. (id:63203)
Property Details
| MLS® Number | X12985322 |
| Property Type | Single Family |
| Community Name | Raleigh |
| Amenities Near By | Hospital, Public Transit |
| Equipment Type | None |
| Features | Flat Site, Guest Suite |
| Parking Space Total | 2 |
| Rental Equipment Type | None |
| Structure | Deck, Porch |
Building
| Bathroom Total | 3 |
| Bedrooms Above Ground | 4 |
| Bedrooms Total | 4 |
| Age | 100+ Years |
| Appliances | Water Heater, Dishwasher, Dryer, Furniture, Microwave, Two Stoves, Washer, Two Refrigerators |
| Basement Development | Finished |
| Basement Type | Full (finished) |
| Construction Style Attachment | Detached |
| Cooling Type | None |
| Exterior Finish | Vinyl Siding, Brick Veneer |
| Foundation Type | Block |
| Half Bath Total | 1 |
| Heating Fuel | Natural Gas |
| Heating Type | Forced Air |
| Stories Total | 2 |
| Size Interior | 1,500 - 2,000 Ft2 |
| Type | House |
| Utility Water | Municipal Water |
Parking
| No Garage |
Land
| Acreage | No |
| Fence Type | Partially Fenced |
| Land Amenities | Hospital, Public Transit |
| Sewer | Sanitary Sewer |
| Size Depth | 81 Ft ,2 In |
| Size Frontage | 37 Ft ,8 In |
| Size Irregular | 37.7 X 81.2 Ft |
| Size Total Text | 37.7 X 81.2 Ft |
| Zoning Description | R1 Low Density Residential |
Rooms
| Level | Type | Length | Width | Dimensions |
|---|---|---|---|---|
| Second Level | Bathroom | 2.64 m | 1.52 m | 2.64 m x 1.52 m |
| Second Level | Bedroom 4 | 3.78 m | 2.82 m | 3.78 m x 2.82 m |
| Second Level | Kitchen | 4.75 m | 2.21 m | 4.75 m x 2.21 m |
| Second Level | Living Room | 5.49 m | 4.75 m | 5.49 m x 4.75 m |
| Basement | Recreational, Games Room | 6.68 m | 3.23 m | 6.68 m x 3.23 m |
| Basement | Bathroom | 1.88 m | 0.99 m | 1.88 m x 0.99 m |
| Basement | Laundry Room | 6.83 m | 4.17 m | 6.83 m x 4.17 m |
| Basement | Other | 7.52 m | 4.52 m | 7.52 m x 4.52 m |
| Main Level | Other | 5.97 m | 1.73 m | 5.97 m x 1.73 m |
| Main Level | Living Room | 4.52 m | 3.84 m | 4.52 m x 3.84 m |
| Main Level | Dining Room | 4.52 m | 2.87 m | 4.52 m x 2.87 m |
| Main Level | Kitchen | 4.52 m | 3.66 m | 4.52 m x 3.66 m |
| Main Level | Bathroom | 2.9 m | 1.68 m | 2.9 m x 1.68 m |
| Main Level | Bedroom | 3.68 m | 3.05 m | 3.68 m x 3.05 m |
| Main Level | Bedroom 2 | 3.53 m | 3.05 m | 3.53 m x 3.05 m |
| Main Level | Bedroom 3 | 3.05 m | 2.77 m | 3.05 m x 2.77 m |
Contact Us
Contact us for more information


















































