518310 County Road 124 Road Melancthon, Ontario L0N 1S7
$499,999
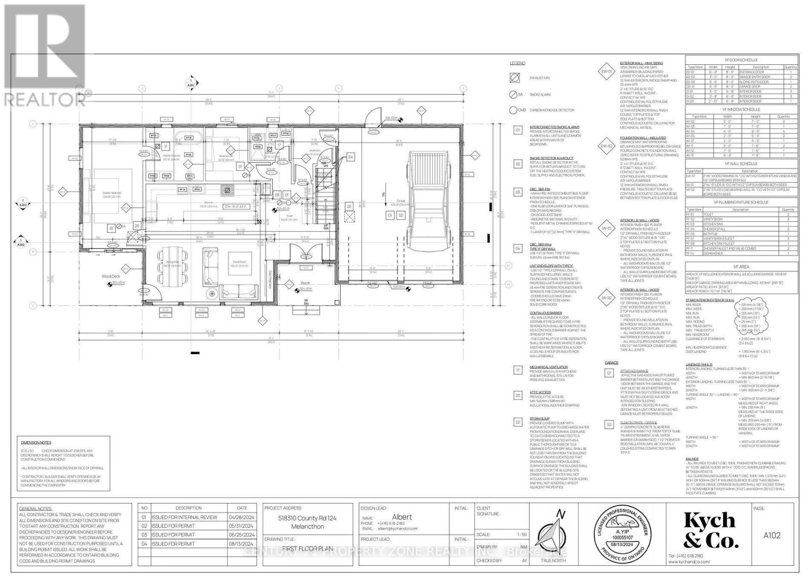
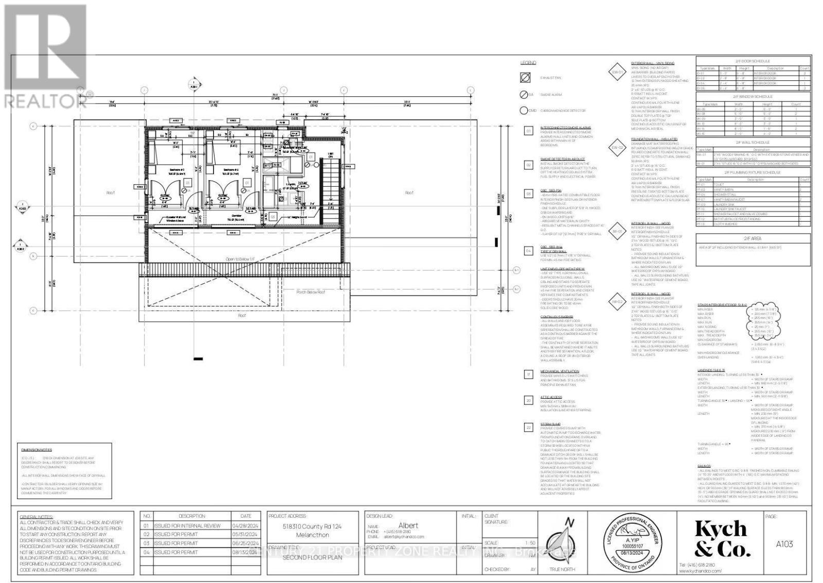
Discover a rare opportunity to build your dream home on this stunning 1.14-acre lot. Just minutes from Shelburne town. This serene property offers the perfect blend of country tranquility and convenient access to town amenities. Plans for a 2,073 SF home have already been approved preliminary by the City. Approved plans include a custom home with a 2-car garage, 4 bedrooms, 3 full bathrooms, and a luxurious master bedroom with an ensuite. Architect drawings are available. **NO DEVELOPMENT CHARGES** on a new house, the existing old house is still there and a steel barn. Property is zoned Rural Residential and NO conservation restrictions. Buyer and Buyers Agent to complete own due diligence in regard to zoning. Don't miss out on this unique opportunity. (id:63203)
Property Details
| MLS® Number | X13027524 |
| Property Type | Vacant Land |
| Community Name | Rural Melancthon |
| Equipment Type | Propane Tank |
| Rental Equipment Type | Propane Tank |
Building
| Basement Type | None |
| Cooling Type | None |
| Exterior Finish | Vinyl Siding |
| Fireplace Present | Yes |
| Foundation Type | Unknown |
| Heating Type | Other |
| Stories Total | 2 |
| Size Interior | 700 - 1,100 Ft2 |
Land
| Acreage | No |
| Sewer | Septic System |
| Size Depth | 244 Ft |
| Size Frontage | 200 Ft |
| Size Irregular | 200 X 244 Ft |
| Size Total Text | 200 X 244 Ft|1/2 - 1.99 Acres |
Utilities
| Electricity | Installed |
Contact Us
Contact us for more information







