6 - 2 Alderson Court New Tecumseth, Ontario L9R 2B7
$19 / ft2
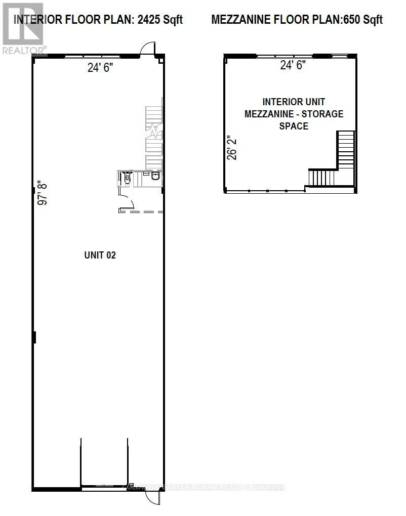
Elevate Your Business With Alliston's New Premier Industrial-Office Opportunity Unlock the potential of your business in one of Alliston's fastest-growing employment districts. Whether you are looking to expand or establish a new flagship location, 2 Alderson Court offers an exceptional opportunity to lease modern, new-construction units designed for high-performance businesses. Position your team in a high-exposure hub just minutes from the Honda Manufacturing facility and Highway 89, offering seamless connectivity within a rapidly growing business park. These modern industrial units feature versatile layouts from 2,425 to 3,075 SF, boasting 22 ft clear heights and massive 10' x 14' rear drive-in doors for maximum logistical efficiency. Each space is built for performance with energy-efficient systems, ample parking, and a 650 SF light-filled mezzanine perfect for office or storage use. Zoned EA2-13, it supports a wide range of uses, including office, light manufacturing, contractor services, and research and development, making it a versatile and attractive option. (id:63203)
Property Details
| MLS® Number | N13022300 |
| Property Type | Industrial |
| Community Name | Alliston |
Building
| Age | New Building |
| Cooling Type | Partially Air Conditioned |
| Heating Fuel | Natural Gas |
| Heating Type | Forced Air |
| Size Interior | 3,075 Ft2 |
| Type | Multi-tenant Industrial |
| Utility Water | Municipal Water |
Land
| Acreage | No |
| Size Depth | 97 Ft ,9 In |
| Size Frontage | 24 Ft ,7 In |
| Size Irregular | Unit=24.6 X 97.8 Ft |
| Size Total Text | Unit=24.6 X 97.8 Ft |
| Zoning Description | Ea2-13 |
Contact Us
Contact us for more information



